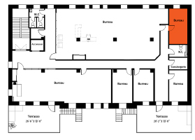
Étage 1
Suite-106
Suite-105
Ce bureau est situé au premier étage côté sud avec une très belle vue vers le village. Mesurant 15 pieds 10 pouces par 10 pieds, ce local peut accueillir facilement deux personnes.
Vous avez le contrôle de la température en mode chauffage ou climatisation. Un excellent Wi-Fi est inclus ainsi que des prises filaires mural. Trois salles de bains sont accessible au première étage dont une adapté au personne à mobilité réduite.
Un balcon panoramique est accessible sur le même étage menant à la terrasse du restaurant. Le stationnement est gratuit pour vous et vos clients.
Suite-104
Ce bureau est situé au premier étage côté sud avec une très belle vue vers le village. Mesurant 16 pieds 8 pouces par 10 pieds, ce local peut accueillir facilement deux personnes.
Vous avez le contrôle de la température en mode chauffage ou climatisation. Un excellent Wi-Fi est inclus ainsi que des prises filaires mural. Trois salles de bains sont accessible au première étage dont une adapté au personne à mobilité réduite.
Un balcon panoramique est accessible sur le même étage menant à la terrasse du restaurant. Le stationnement est gratuit pour vous et vos clients.



















